Подъемный механизм
Серия ZJQS40G2

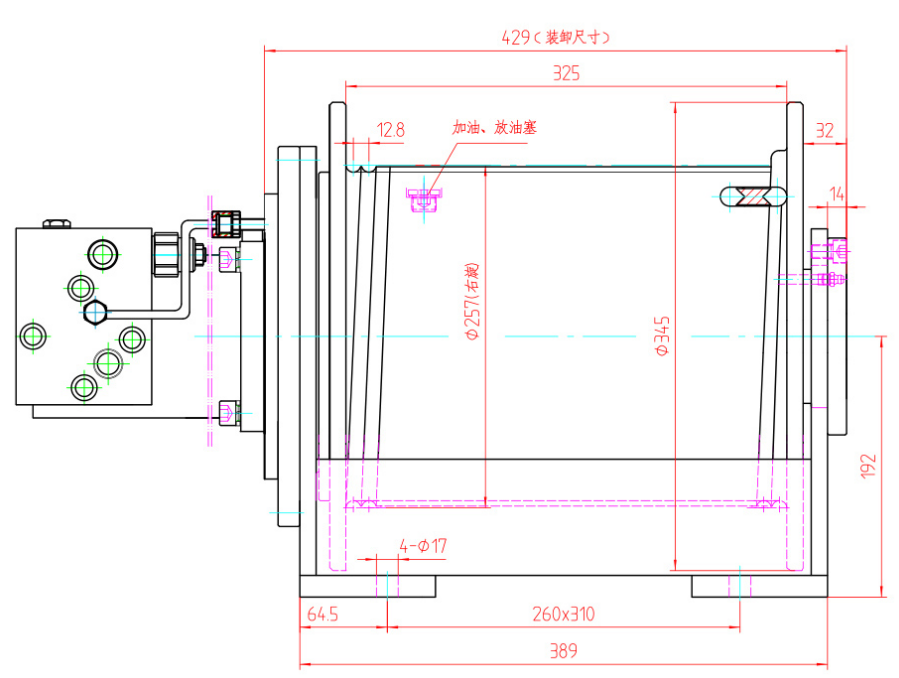
Подъемный механизм ZJQ540G2
| Низкоскоростной моторный подъемный механизм для автокранов |
|
|
|
|
| Модель продукта | Вместимость (T) | передаточное число | Максимальный выходной крутящий момент (Н-м) | Максимальная скорость движения каната | гидравлический двигатель | Номинальный расход | первый слой | Максимальное натяжение одного каната | Длина*Ширина*Высота | повторение |
| ZJQS10A3MBR125FD2 | 3 | 5 | 1300 | 50 | BMR-100/125/160 | 45 | 15000 | 12000 | 295*267*280 | 51 |
| ZJQS11MBD100GFD1 | 3 | 5 | 1300 | 50 | BM5-100/125/160 | 65 | 15000 | 12000 | 311*Φ265 | 46 |
| ZJQS15D/C/B3MB5250GFD1 | 3~5 | 5 | 1700 | 45 | BMR-200/250 BM5-200/250 | 60 | 16000 | 12000 | 232.5*305*325 | 60 |
| ZJQS25GMB5250FFD1 | 5~7 | 5 | 2700 | 52 | BM5-250 | 80 | 25000 | 20000 | 310*315*335 | 65 |
| ZJQS26D6MB5250FFD1 | 6 | 5.7 | 3200 | 40.5 | BM5-250 | 65 | 25000 | 20000 | 314*330*377 | 100 |
| ZJQS28AYMBSD200FD11A | 6~8 | 5.9 | 3115 | 50 | OMSU-200/250 | 65 | 27800 | 22000 | 376*435*356 | 85 |
| ZJQS35AMB5250FFD1 | 8~10 | 5/5.3/6 | 3750 | 47 | BM5-305 | 90 | 30000 | 23500 | 366*365*383 | 119 |
| ZJQS35D3MB5250FFD1 | 8~10 | 6 | 3750 | 51 | BM5-250 | 75 | 30000 | 23500 | 374*392*410 | 145 |
| ZJQS40AMB6315BFD3 | 12 | 5.3/6 | 4650 | 52 | BM6-315 | 100 | 36000 | 27500 | 366*392*406 | 135 |
| ZJQS40G2MB6315BFD3 | 12 | 6 | 4650 | 27 | BM6-315 | 75 | 36000 | 27500 | 429*345*364.5 | 143 |
| ZJQS50BMB6315BFD3 | 14 | 6.5 | 5000 | 52 | BM6-315 | 100 | 38000 | 28700 | 432*425*405 | 165 |
| ZJQS60AMB6315BFD3 | 14`16 | 6.15 | 5650 | 65 | BM6-315/400 | 120 | 40000 | 30000 | 421*410*457 | 200 |
| ZJQS62AMB6400BFD3 | 18 | 6.4 | 7600 | 67 | BM6-400/500 | 110 | 50000 | 40000 | 421*395*455 | 205 |
| ZJQS85DMB6250BFD3 | 20 | 24.6 | 10550 | 24 | BM6-250 | 120 | 65000 | 50000 | 594*585*495 | 310 |
Примечание:
1. Внешний барабан, установочные размеры, интерфейс двигателя, передаточное число и т. д. могут быть спроектированы в соответствии с потребностями.
2. Направления вращения входного и выходного редуктора противоположны.